무려 9년 만의 한강뷰 아파트로 일반 분양하는 청담 르엘
청약 일정이 늦어져서 기다리는 분들 많은 것으로 알고 있습니다. 그도 그럴것이 한강뷰에 주변 시세를 고려하면 로또청약일테니 말이죠.

일반분양 총 176세대 예정
- 전용 59 : 60세대
- 전용 84 : 91세대
- 전용 171 : 1세대 (펜트하우스)
- 전용 203 : 1세대 (펜트하우스)
- 전용 208 : 1세대 (펜트하우스)
- 전용 235 : 1세대 (팬트하우스)
청담 삼익 아파트 재건축 사업인 청담 르엘은 총 세대수 1,261세대로 한강 조망 대단지입니다. 그리고 평지라는 점! (총 9개 동, 최고층 35층, 주차 1.8대) 물론 이 가운데 조합원 물량은 935세대이고, 임대 물량이 144세대이며, 로또로 여겨지는 일반 분양 물량은 약 180세대입니다. 청담 르엘은 아시다시피 7호선 청담역 초역세권이며, 9호선 봉은사역까지 도보 15분 이내입니다. 걸을 수 있지만 조금 멀긴합니다. 청담역에 위례신사선까지 개통하면 2호선 삼성역까지 2 정거장입니다. 청담르엘 입지는 더 얘기하면 입만 아픕니다.
물론 우리의 관심은 조합원분양말고 일반분양이죠? 일반 분양 세대는 동호수 단지 배치도 보시면 주로 103~106동에 속할 것으로 보이며, 이 중 한강 조망 청약 물량은 많지 않을것으로 보입니다. 물론 전체 세대의 70%가 한강 조망을 누릴 수 있게 설계하여 남향보다는 북동향으로 거실이 배치되어 있으며, 대형 평수들은 한강변이며, 소형 평수들은 영동대로 쪽으로 배치되어 있습니다.
청담르엘 조감도 및 배치도
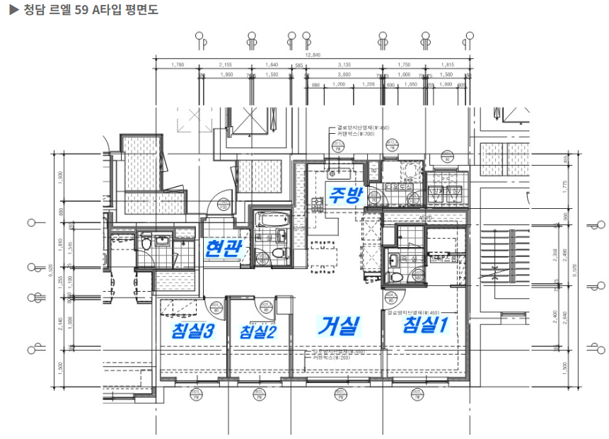
그럼, 일반 분양으로 나온 우리가 청약할 59㎡(25평형), 84㎡(34평형), 펜트하우스 평면도는 어떤 모양세일까요?

청담 르엘은 59A 타입(판상형)과 59B 타입(타워형)이 있습니다. 84타입도 A는 판상형, 84B타입은 타워형이며, 84는 C타입도 있습니다.
59A 타입(판상형)과 59B 타입(타워형)


84타입 A 판상형, 84B타입 타워형, C타입도 있음



청담르엘 분양일정 : 사실상 내년으로 분양 연기 확정
이미 조합원들에게는 모델하우스(위치 : 뚝섬)까지 오픈했고, 조합원 분양 뒤 곧 일반 분양을 할 예정이었습니다. 그러나 조합원 간 이견 등으로 조합장이 사퇴하면서 분양 절차가 중단되었습니다. 조합장 재선발에만 최소 3~4개월이 소요되기에 일반분양은 2024년 초가 될 것으로 보입니다. 청담 르엘 청약을 원하시는 실수요자는 좀 더 기다리셔야겠죠!?
청담 르엘 분양 가격(분양가) : 평당 6천~7천 만원 예상
조합원 분양가는 59타입 약 12억원, 84 타입 약 16억 원이었으며, 청담르엘은 투기과열지구이자 분양가 상한제 적용 단지라서 일반 분양가격은 인근 아파트 시세 80% 정도로 분양해야 합니다. 참고로, 21년 분양한 반포 래미안 원베일리 분양가격(분양가)은 평당 5668만 원이었습니다. 따라서 공사비 증가 등을 고려할 때 청담 르엘은 최소 평당 6천은 넘길 것으로 보입니다. 따라서, 중간 분양가인 평당 6,500만원으로 가정해 보면 아래 금액 전후가 될 것입니다. 여기에 확장비 등 추가비도 고려해야 하기 때문에 아래 금액 전 후 정도 예상하고 있으면 되겠네요.
- 59 타입 : 25평 * 6,500만 원 = 약 16억
- 84 타입 : 34평 * 6,500만 원 = 약 22억
청담 르엘 아파트 로또 청약 두둥 탁!
주변 아파트인 청담 자이의 시세와 비교해 볼 때 분양가를보죠. 청담자이는 59타입(25평형)은 없고 49 타입(21평형)이 있습니다. 청담자이 전용 49 매매가는 18억 원대를 회복했으며 실거래가 기준으로 19억 원대 거래도 되었습니다. 저층의 경우 17억 원대 매물도 있지만, 로열동 고층 한강뷰의 경우 20억 원대의 호가 매물도 보입니다. (23년 9월 기준)
청담자이 33평형은 29억34억대로 호가가 형성되어 있습니다. 전세가는 1315억원대 형성되어 있고요.
만약, 청담 르엘 59타입 16억 원에 청약 당첨된다면
2012년 식 청담 자기 49타입 시세가 18~19억 원대이니, 더 신축이면서 평수도 넓은 59 타입(25평) 청담 르엘은 20억을 훌쩍 넘을 것으로 보입니다. 그래서 당첨만 되면 로또 청약이라고들 합니다. 34평형에 당첨된다면 10억 내외의 시세 차익이 예상됩니다.
청약 당첨 후 요렇코럼
청약 당첨 후, 아파트 계약금, 중도금, 잔금까지 내 자금은 얼마나 필요하고 대출은 어디까지 가능할까요? 전매는 바로 가능한지 실거주 의무는 있는것인지 알아보겠습니다.
- 계약금 : 분양가 10% (전액 자기자본 준비 필요)
- 중도금 : 분양가 60% (통상 6회로 나눠 납입, 집단대출 가능)
- 잔금 : 분양가 30% (자기 자본 & 주택담보대출을 통해 중도금 집단 대출 상환 후 납입)
청담 르엘 청약 당첨 후, 바로 필요한 자금은 분양가의 10%입니다. 통상 10% 이지만 입주가 얼마 남지 않은 경우 20%로 하는 경우도 있으니 염두에 두시면 좋겠습니다. 이후, 중도금은 분양가 12억이 넘는 아파트라도 이제 대출이 가능합니다. 다만, 투기과열지구인 청담 르엘은 투기과열지구라서 아직 LTV 50% 규제가 남아 있습니다.
청담 르엘 아파트는 전매제한 3년, 실거주 3년 의무가 있습니다. 간혹 실거주 의무가 폐지되었다고 알고 계신 분이 계신데 아직 확정되지 않았습니다. 주택법이 국회에서 통과 되지 못하고 있습니다. 따라서, 최초 입주 가능일부터 3년 동안 실거주 해야 합니다. 이는, 전세를 놓아 잔금을 치룰 수 없다는 것으로, 잔금을 자기 자본과 주택담보대출로 모두 납입할 수 있어야 합니다. 단, 주택법이 청담르엘 입주 전에 개정된다면 소급 적용되어 실거주 의무가 없어질 수 있으니 참고하세요.
청담 르엘 예상 입주일
청담 르엘 아파트 입주 예정일은 2025년 8~9월로 되어 있습니다. 전제는 공사 지연이 없다는 가정 이므로 만약 시공사에서 공사비 증액을 요구하거나 다른 문제가 발생 시 입주는 지연될 수 있겠습니다.
청담르엘 분양 홈페이지
아래 주소는 청담르엘 분양 홈페이지인데 아직 분양일정이 나오지 않아 현재 별다른 내용은 없습니다.